logo small house

EN|ES

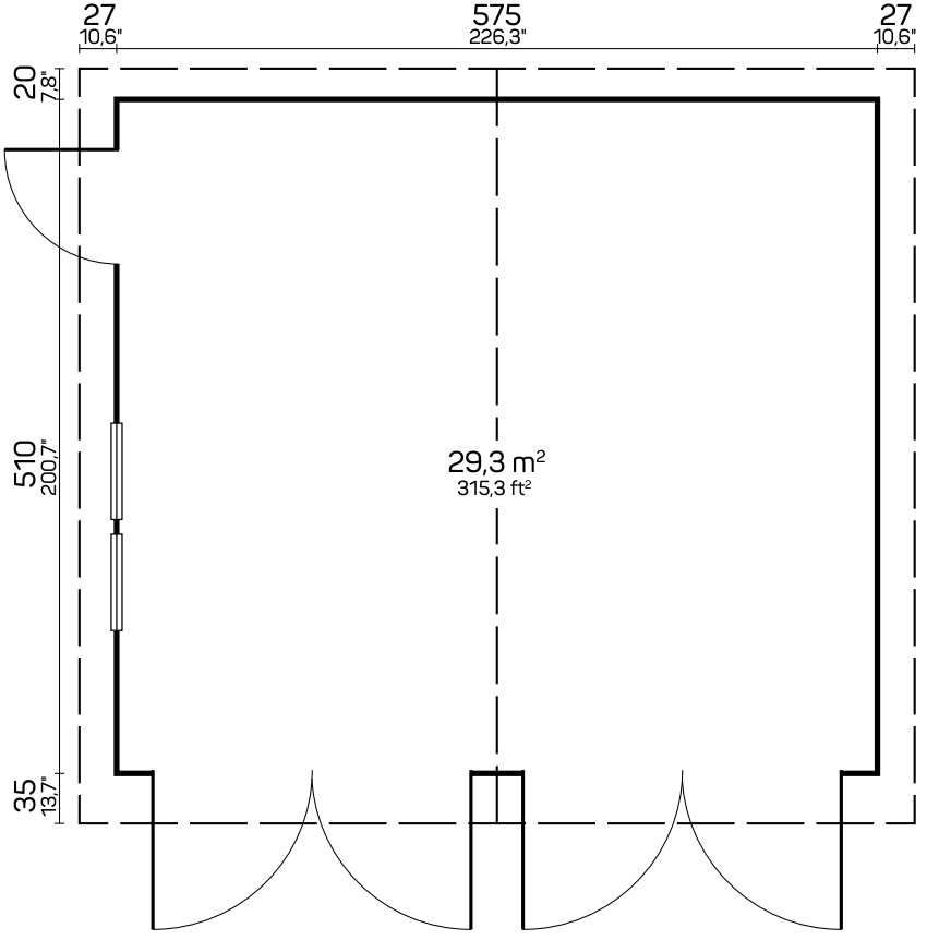
Ibi Garage D (5.95 x 5.3 m)

Ibi Garage D Garajes

€8.097

El cianotipo de Ibi Garage D Garajes

Encuentre a continuación todos los detalles para nuestras Casitas de jardín con respecto al espesor de la madera, vigas de cimientos, juntas de esquina, juntas de precisión, sistemas de cierre, puertas, ventanas, suelos y tablas de techo, kits de montaje, sistemas de ranura y lengüeta, etc. Esté informado y compare la calidad.

Incluimos:

  • Le ayudaremos a seleccionar el mejor lugar para instalar su casa de jardín
  • Ayudaremos en toda la planificación y encontraremos los mejores constructores si es necesario
  • Entregado a una empresa de transporte cerca de usted
  • 100% abeto del norte (un tipo de pino)
  • Juntas de esquina resistentes al viento
  • Puerta y ventana de madera encolada, acristalada con vidrio real
  • Las ventanas tienen sistemas de apertura y giro
  • Rodapiés y tablas de suelo diseñadas para combinar con el diseño
  • Juntas de esquina resistentes al viento
  • Vigas de madera impermeables para la cimentación.
  • Asesoramiento en construcción y mantenimiento
  • Todas las casitas vienen con un kit de montaje y un manual de instalación completo
Enviar Consulta
Vigas de pared 28/40 mm

Vigas de pared 28/40 mm

Vigas de cimentación impermeables

Vigas de cimentación impermeables

Unión de esquinas

Unión de esquinas

Unión de precisión

Unión de precisión

Cerraduras de cilindro

Cerraduras de cilindro

Madera laminada para puerta

Madera laminada para puerta

Tablas de suelo y techo de 18 mm

Tablas de suelo y techo de 18 mm

Kit de montaje

Kit de montaje

Tablas de techo de lengüeta y ranura 18 mm

Tablas de techo de lengüeta y ranura 18 mm

Ventanas Ibi Garage D Garajes
  • Abeto del norte
  • 28 mm o 40 mm
  • Vidrio 3 mm
  • Apertura de la ventana: inclinación y giro
Puertas Ibi Garage D Garajes
  • Abeto del norte
  • 28 mm o 40 mm
  • Madera laminada
  • Vidrio 3 mm
  • Sistema de cierre: Cilindro